
Metal Security ခြံစည်းရိုးများကိုတရုတ်သံမဏိကိုယ်ထည်အဆောက်အအုံထုတ်လုပ်သူ Liweiyuan မှထုတ်လုပ်သည်။ စက်ရုံတိုက်ရိုက်အရောင်းအ 0 ယ်အရောင်းအာမခံချက်အာမခံပါသည်။ ၎င်းတို့ကိုနံရံများ, ခြံစည်းရိုးများ, သင့်ရဲ့စုံစမ်းရေးကော်မရှင်ကိုကြိုဆိုပါတယ်။
Liweiyuan ၏သတ္တုလုံခြုံရေးခြံစည်းရိုးများ၏အဓိကဖွဲ့စည်းတည်ဆောက်ပုံဆိုင်ရာအစိတ်အပိုင်းများတွင်ဘောင်, longitudinal ထုပ်များ, frame ကိုအဓိကအားဖြင့်သတ္တုပစ္စည်းများအမျိုးမျိုးမှတည်ဆောက်ထားပြီးတစ် ဦး ချင်းဒီဇိုင်းလိုအပ်ချက်များကိုဖြည့်ဆည်းရန်ပုံစံအမျိုးမျိုးဖြင့်လာသည်။ ဘောင်ပစ္စည်းများသည်အဓိကအားဖြင့် Galvanized သံမဏိပြားများ, ဤပစ္စည်းများကိုသူတို့၏ကြာရှည်ခံမှုနှင့်ချေးခြင်းခံနိုင်ရည်အတွက်ရွေးချယ်သည်။ longitudinal ထုပ်များသည်ခြံစည်းရိုးဘောင်များအကြားသတ်မှတ်ထားပြီးသူတို့၏အစွမ်းခွန်အားနှင့်ခိုင်မာမှုကိုမြှင့်တင်ပေးသည်။
Connectors များသည်ခြံစည်းရိုးကိုအထောက်အပံ့ပေးသည့်ပို့စ်များသို့ချိတ်ဆက်ထားသောအဓိကအစိတ်အပိုင်းများဖြစ်သည်။ ကျွန်ုပ်တို့သည် Galvanized သံမဏိပြားများ, ဤပစ္စည်းများသည်အလွန်ကောင်းမွန်သောလေနှင့်ငလျင်ရောင်ခံနိုင်ရည်ရှိခြင်း, ပံ့ပိုးမှုရေးသားချက်များသည်ခြံစည်းရိုး၏အဓိကပံ့ပိုးမှုအစိတ်အပိုင်းများဖြစ်သည်။ တည်နေရာ, လိုအပ်ချက်များနှင့်ပတ်ဝန်းကျင်အပေါ် မူတည်. ပံ့ပိုးမှုဆိုင်ရာပို့စ်များကိုကျွန်ုပ်တို့အသုံးပြုနိုင်သည်။ သို့သော်ဤရေးသားချက်များအတွက်အသုံးပြုသောပစ္စည်းများသည်မြင့်မားသောတည်ငြိမ်မှု, လေနှင့်ငလျင်ဒဏ်နှလုံးကိုခံနိုင်ရည်ရှိရမည်။


ကျွန်ုပ်တို့၏သတ္တုလုံခြုံရေးခြံစည်းရိုးကိုဖြုတ်။ ပြန်လည်အသုံးပြုနိုင်သည်။ သူတို့၏အမြင့်, အကျယ်နှင့်ဆက်သွယ်မှုနည်းလမ်းများကိုဖောက်သည်များ၏လိုအပ်ချက်များနှင့် application spriks နှင့်ကိုက်ညီရန်,


ကျွန်ုပ်တို့၏သတ္တုလုံခြုံရေးခြံစည်းရိုးများသည်အခြားအဆောက်အအုံများနှင့်လမ်းများမှဆောက်လုပ်ရေးလုပ်ငန်းများဖြစ်သောအခြားအဆောက်အအုံများနှင့်လမ်းများမှသီးခြားသီးခြားနေရာများဖန်တီးသည်။ သူတို့က disassembled နိုင်ပါတယ်နှင့်လိုအပ်သလို reassembled နိုင်ပါတယ်။
အလုပ်ရုံဆွေးနွေးပွဲခွဲတမ်းများကိုအဓိကအားဖြင့်စက်မှုလုပ်ငန်းဆိုင်ရာအလုပ်ရုံဆွေးနွေးပွဲများတွင်အန္တရာယ်ရှိသောပစ္စည်းကိရိယာများတွင်အန္တရာယ်ရှိသောပစ္စည်းကိရိယာများအဖြစ်အသုံးပြုလေ့ရှိပြီးအန္တရာယ်ရှိသောပစ္စည်းများကိုခွဲထုတ်ရန်,
ကျွန်ုပ်တို့၏ထုတ်ကုန်များကိုမိုးလုံလေလုံအလုပ် areas ရိယာများကိုကာကွယ်ရန်အိမ်တွင်းဂိုဒေါင်ခြံစည်းရိုးအဖြစ်အသုံးပြုနိုင်သည်။ ၎င်းတို့သည်သိုလှောင်ရုံများ, ထောက်ပံ့ပို့ဆောင်ရေးစင်တာများနှင့်စက်ရုံများကဲ့သို့သောသိုလှောင်ရုံအမျိုးမျိုးတွင်ကျယ်ပြန့်စွာအသုံးပြုကြသည်။
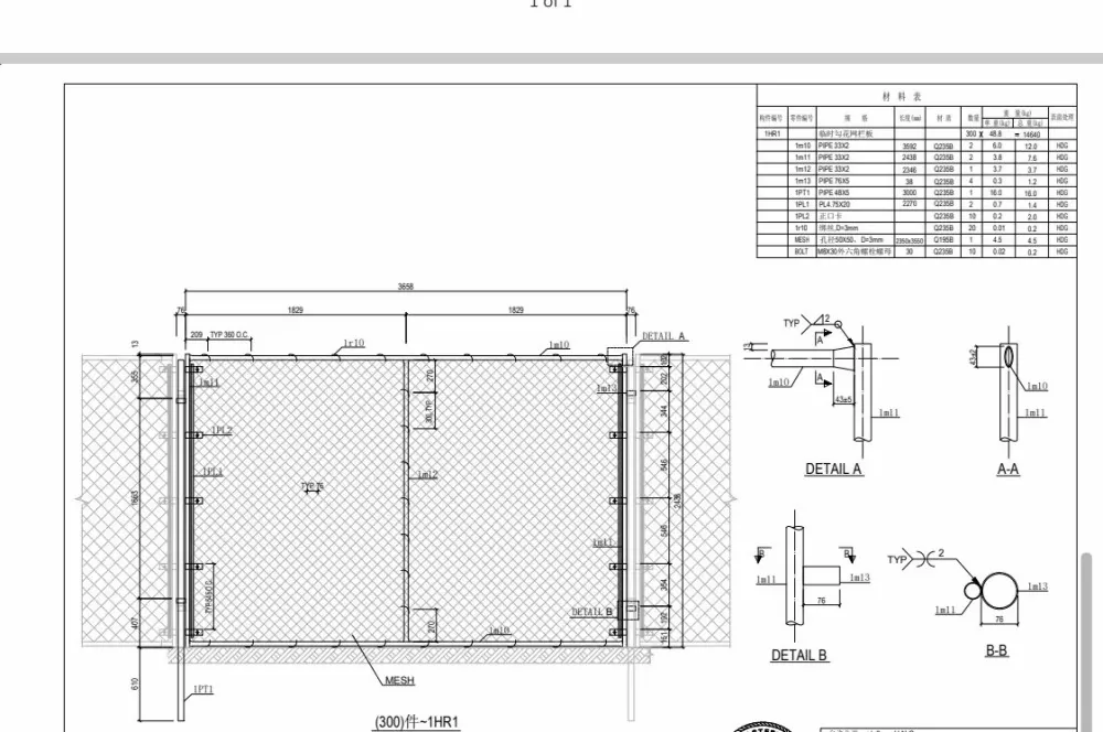
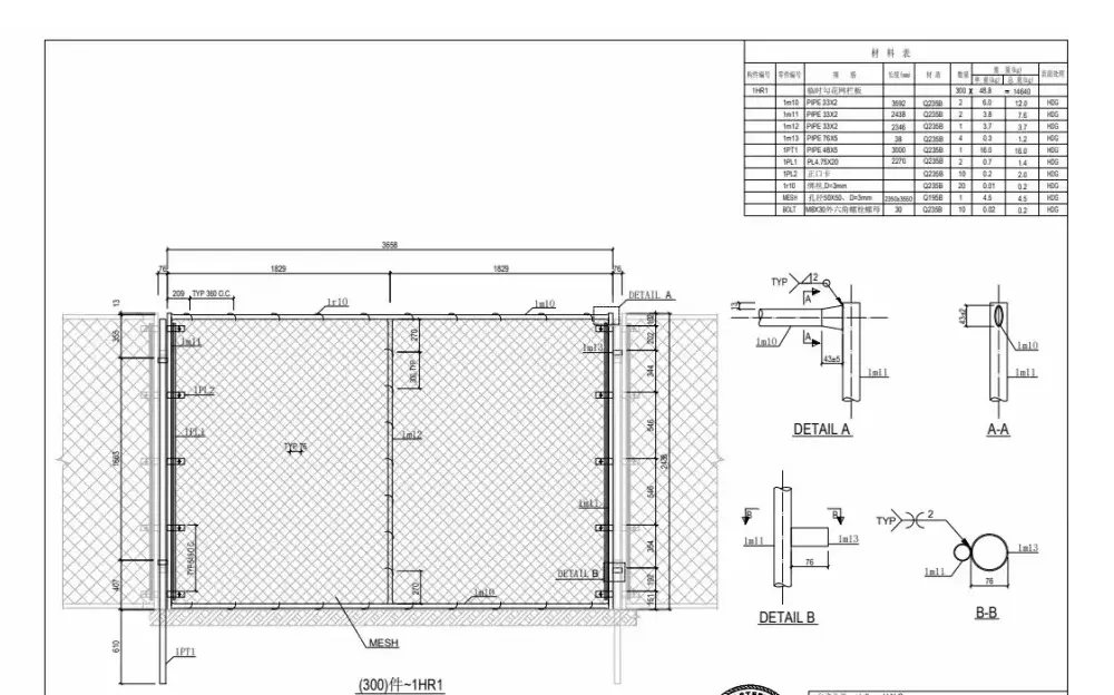
Liweiyuan Metal Security ခြံစည်းရိုးများအတွက်ဘုံအရွယ်အစားများမှာ 1.5 မီတာမြင့်သော 2 မီတာ, 2.5 မီတာအရှည်မြင့်မားသော 2 မီတာ, နှင့် 3 မီတာမြင့်မားသော 2.5 မီတာမြင့်မားခြင်း။ စိတ်ကြိုက်အရွယ်အစားရရှိနိုင်ပါသည်။ သံမဏိပစ္စည်းများတွင် Q235B, Q355B, A36 နှင့် A572 တွင်ဥရောပနှင့်အမေရိကန်စံချိန်စံညွှန်းများနှင့်ကိုက်ညီသည်။
